
南鴻裝飾11月全體設計師會議順利召開

11月11日,南鴻裝飾本月全體設計師會議如期召開。
本次會議不光有多位設計師的案例欣賞,還有來自產品部、軟裝部、工程部小伙伴們的硬核知識分享,超多干貨,絕對精彩!
? MVP作品
全案組陳傳軍 / 春江花月

家,包裹著我們對個人生活環境最私密、最浪漫的想象。當藝術融入空間,設計借用色彩和材質搭配,為我們搭建起生活的橋梁,展開了現代生活畫卷中詩意棲居的無限可能。
來自全案組陳傳軍老師的這套春江花月案例就是這樣,意式簡奢主義,家具的造型簡單卻設計感十足,整個空間簡約自然又富于精致美感,中性的色調時尚而不浮躁,是一眼可鑒的品質家居。
▲點擊展開案例詳情!
城東分部劉枝 / 康城一品

輕奢現代美式,相對于單一美式來說,更加年輕時尚,又不乏沉穩大氣之感,可以說是一種能讓上下兩代人都十分喜歡的家居風格。
本案是170㎡三室兩廳戶型,寬敞的公區域更有了大氣風范,置身在這樣一個格調高雅的空間中,你就能感受到一種奢華而精致的居住氛圍感。
▲點擊展開案例詳情!
科技城分部周娟 / 中南樾府

本案的業主是位單身貴族,媽媽偶爾來小住,平時經常出差。在住房需求上,風水是重點考量,其次要有書房,客廳空間要足夠大氣,整體能呈現輕松自在的氛圍感。
效果圖一覽▼

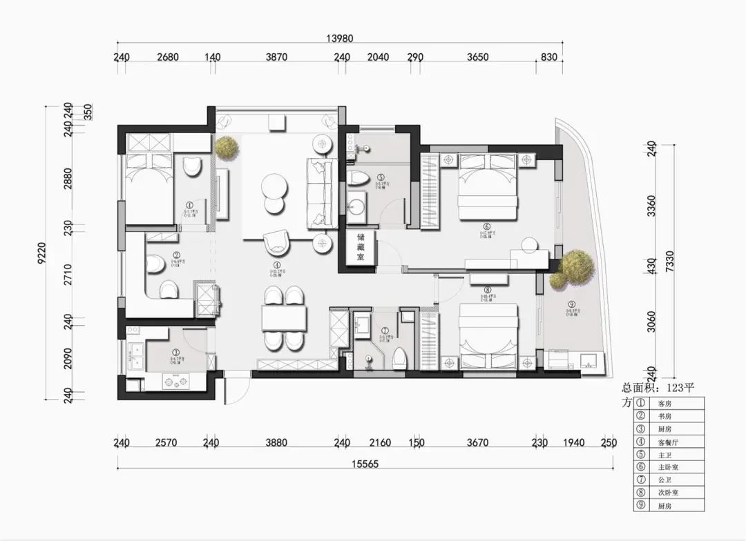
蕭山分部朱樟毅 / 城市之光

本案為123㎡復式戶型,男主人是名程序員,又喜愛打電競,我們為他在一樓設計了開放式書房,而女主人是名中學老師,非常注重日常生活的儀式感,我們通過弧形元素的使用及各種材質的混搭,來點綴出空間的情調。
戶型圖一覽▼

效果圖一覽▼

設計二部趙航杰 / 凱文杭莊

本案同樣是現代美式風格的案例,地面三層加底下兩層的別墅大宅,給了設計師很大的發揮空間。現代美式房屋的色彩搭配往往會選擇比較明朗恬靜的效果,整體讓人看起來也有溫和柔美的感覺,再搭配清爽的線條,總體的格調足夠舒適大方。
實景欣賞▼

設計六部王逸鴻 / 九龍倉碧璽

本案是三室兩廳的戶型,客餐廳空間大,廚房面積小且有一個暗衛,設計師針對戶型上的缺陷進行了對應調整。
戶型分析▼

▲擴大廚房空間,增加餐邊柜功能,客餐廳區域分割更明顯,并去除一個暗衛,增加儲藏室功能
實景欣賞▼


產品部:產品更新信息與一些常見問題向設計師們提醒,并詳細講解了木作流程和操作規范。

軟裝部:講解了軟裝的相關流程節點,及硬裝不同階段介入軟裝的機會點等。

工程部:重點介紹了老房、地下室和露臺裝修的各項施工工藝節點。

△祝董為各業績優秀的設計師頒獎
會議的結尾,李總講話表示,南鴻多年來脫離價格戰,是通過做品牌、做品質、做放心工程來贏得市場份額,設計師們需要不斷精進自己的設計創新能力和落地交付的專業能力,在前期就快速與客戶建立信任,幫助客戶實現真正的“無憂裝修”。

祝董最后做總結發言,指出在原材料全面漲價的大環境下,南鴻人應扎牢根基,繼續為客戶朋友輸送高性價比的產品與服務。
作為中國家裝行業兩項全國性標準規范的參編單位和首批實施單位,南鴻有著強大的供應鏈生態體系和嚴格的品質監管流程,即使面對再艱難的挑戰,南鴻的明天也只會越來越好!

免費
免費申請戶型規劃
專屬設計師免費1對1全程服務
已經有3756人申請
24小時免費咨詢電話
400-8800-618
你家預算
108080元