
140㎡意式輕奢:理想都會生活范本,以造型與結構書寫的靈動高級感!

本期要為大家分享一套140方意式輕奢風的案例。
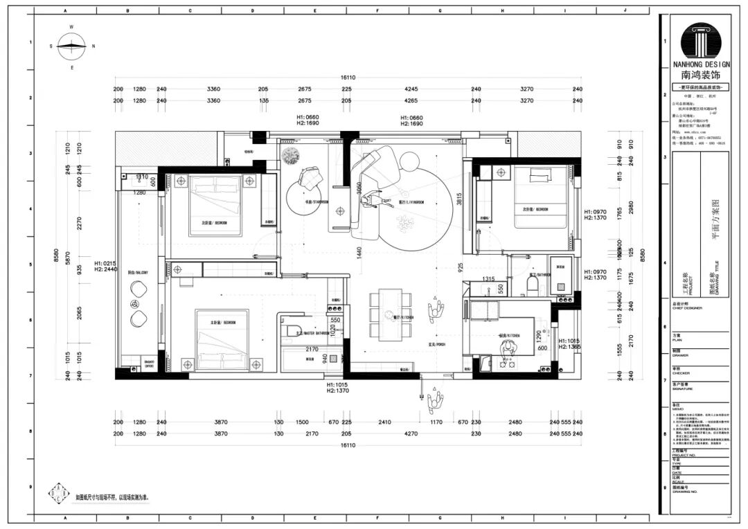
意式輕奢主義的家,于簡約與豐盛間找到平衡,完美詮釋居者心境。 本案在造型的雕琢、材質的選擇與細節的處理上尤為考究,旨在將材質本身的肌理與結構的藝術表達,作為空間張力的核心來源。 客廳、餐廳與書房在內的公區域,也是本案的視覺聚焦中心,整合而流通的布局既延展了視野廣度,又充分包容生活的多種可能,引導一種不被約束的自在節奏。 ▲平面方案 客廳頂部做極簡的無主燈設計,讓光線均勻灑落,地面則通鋪深灰色柔光磚,為空間定下靜謐基調。從上而下的視覺游移,天與地形成鮮明對比,家具則成為二者間的自然過渡,通過細節的層層疊加,賦予客廳溫度與深度。 大理石在素色空間中,總能以最純粹的語義書寫奢華。電視背景墻通過色塊疊搭、線條分割、體塊切割與嵌入等多元設計手法,構建出豐富且具備極強藝術感的層次,在光線下流轉出生動的質感變化。 米咖拼色的意式沙發,搭配大理石茶幾,利落而規整的線條,勾勒出秩序與張力。材質的肌理,于無聲處釋放細膩質感。 而真正點睛的一筆,還要落在與書房交界處的那道優雅拱形結構,它不僅柔化了空間的過渡,更以建筑式的語言,將日常起居升華為一種超凡存在。 餐廳空間有著同樣精細的結構雕琢與軟裝選品,家人的日常就餐、朋友的歡快暢談,都找到了最恰如其分的場所。 利落線條勾勒餐邊柜與背景墻的輪廓,斯卡帕疊級造型則與客廳設計輕巧呼應。天然木材的溫潤性,搭配流動感的空間布局,讓家的每個角落都煥發出活力和生機。 書房也是整塊公區域所濃墨重彩的描繪中心,它以一道拱形結構作為基礎,懸挑式書桌穿插其中,輕盈的形態減少體量感,溫潤與冷冽的調和,勾勒一方適合專注的辦公、閱讀場域。 體塊的分割在這間居室中隨處可見。頂部斜面設計,繼續加深建筑的結構力度,凸顯幾何之美。隱形光源暗中輔助,柔和暈染,烘托愜意的氛圍。 開放式的書房與客廳、餐廳不同區域產生視覺聯動,悄然延展了空間尺度。一隅角落,自成天地,卻未隔絕家人間的情感交流,這也是主人所向往的居住模式。 極簡黑白調,延續著安穩平靜的空間情緒。電器設備與儲物空間高效整合,打造干凈利落的視覺體驗。而獨立的中廚模式,則最大程度避免了烹炒時的油煙散溢問題。 臥室揉入優雅低調的黑,同時在墻面延續了豐富的造型語言?,F代主義家具擯棄繁復,卻在內斂中透出不凡品味。這方安睡的空間正像是居住者個性的延伸,自在生長,不疾不徐。 寬長的生活陽臺,與主次臥相連,洗衣烘干設備與水池區分置兩端,從洗衣、晾曬到收納,整條家務動線便捷而高效。 P.I. 項目信息 項目名稱:飛虹華庭 設計風格:意式輕奢 項目類型:三室兩廳 項目地點:中國·杭州 項目面積:140㎡ 項目服務:設計·施工·硬裝·軟裝 全案設計 設計單位:浙江南鴻裝飾 施工單位:浙江南鴻裝飾

















已經是最后一篇了
免費
免費申請戶型規劃
專屬設計師免費1對1全程服務
已經有3776人申請
24小時免費咨詢電話
400-8800-618
你家預算
108080元